Photo provided by Google Street View and may be inaccurate:
Room for rent, Bilbao, País Vasco,
, Bilbao- Room for rent
- Ca. 20 m2
- Ca. 550 EUR per month
, Bilbao
- Room for rent
- Ca. 20 m2
- Ca. 550 EUR per month
GET MORE INFO
Your are linked to another portal where payment or signing up may be needed
Room for rent, Bilbao, País Vasco,
Facts
- 7745423
- Room
- Ca. 20 m2
- 1.9.2026
- Ca. 550 EUR
- Ca. 550 EUR
- Yes
GET MORE INFO
Your are linked to another portal where payment or signing up may be needed
Room for rent in Bilbao, País Vasco
ZONA DEUSTO
HABITACIÓN H2 INDIVIDUAL/DOBLE (PARA PAREJA SUMAR 50€ AL PRECIO)
Habitación muy amplia con cama doble.
Suelo de madera, ventanas Climalit.
Calefacción y agua caliente de gas ciudad.
Zona de estudio doble con 2 mesas de escritorio grande, 2 sillas, estantería y lámparas
Equipada con un gran armario, cama doble de 1,35×1,90m.y cómoda antigua restaurada.
Ropa de cama: Protector de colchón, almohadas, plaid y cojines incluidos. Relleno nórdico, funda de relleno nórdico, toallas y sábanas no incluidas, se pueden comprar a la llegada.
Alquilamos por meses naturales completos. Los gastos de suministros y limpieza de zonas comunes están incluidos en el precio. Por favor lee bien todos los detalles de los costes.
CARACTERÍSTICAS
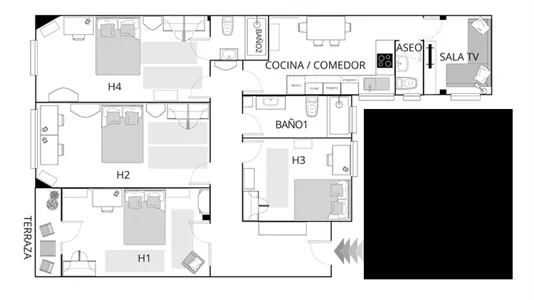
– 110m2 | 4 habitaciones.
– 3 habitaciones dobles con cama de 1,35×1,90m.
– 1 habitación doble con baño privado y cama de 1,50×1,90m.
– Reformado.
ZONAS COMUNES
– Sala con TV y sofá con chaise longe.
– Cocina totalmente equipada con zona de comedor.
– 1 baño con mampara.
– 1 aseo.
– 1 Hall con perchero.
DESCRIPCIÓN DEL PISO
Bonito y elegante piso de 110m2 con habitaciones amplias. Reformado y actualizado, con 1 baño y 1 aseo y cocina nueva totalmente equipada.
Está situado en la mejor zona de Deusto, muy cerca la Universidad de Deusto y del centro de Bilbao.
El piso tiene 4 habitaciones (una de ellas doble con baño privado), cocina equipada, sala con TV plana de 32′, baño completo con una gran ducha y aseo.
Suelo y puertas de madera, ventanas nuevas Climalit, calefacción y agua caliente de gas.
El barrio de Deusto es conocido como una zona de ambiente estudiantil, al ser sede de la Facultad de Economía y Empresa de la Universidad del País Vasco, de la Escuela Oficial de Idiomas y, especialmente, de la Universidad de Deusto, además de varios centros escolares.
El barrio cuenta con dos bibliotecas que forman parte de la red municipal: la de Deusto y la de San Ignacio. Ambas se localizan en la arteria principal del distrito, la avenida Lehendakari Aguirre y entre las dos suman casi 40 000 documentos entre libros, publicaciones periódicas y material audiovisual.
Además está la biblioteca propia de la Facultad de Economía y Empresa de la Universidad del País Vasco.
Deusto cuenta con dos complejos polideportivos en San Pedro de Deusto-La Ribera y en San Ignacio-Elorrieta. El primero —el denominado Polideportivo de Deusto— se encuentra frente al puente Euskalduna y cuenta con una zona de gimnasio, un pabellón cubierto, una pista polideportiva de hierba, sauna y pista de squash.
Por su parte, el polideportivo de San Ignacio cuenta con un campo de fútbol de hierba artificial, así como también de pistas de tenis, gimnasios, frontones y sala de ballet.
Es un barrio muy bien comunicado por
BUS: El servicio de autobuses urbanos, Bilbobus, comunica principalmente el distrito con el centro de la ciudad, aunque también discurre a otros barrios periféricos. Por su parte, Bizkaibus, el servicio de autobuses de la provincia de Vizcaya, tiene frecuentes líneas y numerosas paradas en el distrito, principalmente de aquellas líneas que parten de Abando para dirigirse a los municipios de Munguialdea, Margen derecha y al campus de Leioa de la Universidad del País Vasco.
METRO: líneas 1 y 2, y existen tres paradas, Deusto, Sarriko y San Inazio.
TREN: Desde Deusto partía la línea 4 de EuskoTren, que, tras pasar por el Casco Viejo de Bilbao, llegaba hasta el municipio de Lezama. Dentro del distrito se encontraban las paradas Deustu en la calle Ramón y Cajal y Unibertsitatea, próxima a la Universidad de Deusto. Actualmente, este tramo está en desuso. Anteriormente formaba parte de la línea ferroviaria que enlazaba Bilbao con Plencia con otras paradas en Ibarrekolanda (apeadero) y San Ignacio.
En el barrio existen todos los servicios necesarios: tiendas de alimentación, bancos, farmacias, centro de salud.
HABITACIÓN H2 INDIVIDUAL/DOBLE (PARA PAREJA SUMAR 50€ AL PRECIO)
Habitación muy amplia con cama doble.
Suelo de madera, ventanas Climalit.
Calefacción y agua caliente de gas ciudad.
Zona de estudio doble con 2 mesas de escritorio grande, 2 sillas, estantería y lámparas
Equipada con un gran armario, cama doble de 1,35×1,90m.y cómoda antigua restaurada.
Ropa de cama: Protector de colchón, almohadas, plaid y cojines incluidos. Relleno nórdico, funda de relleno nórdico, toallas y sábanas no incluidas, se pueden comprar a la llegada.
Alquilamos por meses naturales completos. Los gastos de suministros y limpieza de zonas comunes están incluidos en el precio. Por favor lee bien todos los detalles de los costes.
CARACTERÍSTICAS
– 110m2 | 4 habitaciones.
– 3 habitaciones dobles con cama de 1,35×1,90m.
– 1 habitación doble con baño privado y cama de 1,50×1,90m.
– Reformado.
ZONAS COMUNES
– Sala con TV y sofá con chaise longe.
– Cocina totalmente equipada con zona de comedor.
– 1 baño con mampara.
– 1 aseo.
– 1 Hall con perchero.
DESCRIPCIÓN DEL PISO
Bonito y elegante piso de 110m2 con habitaciones amplias. Reformado y actualizado, con 1 baño y 1 aseo y cocina nueva totalmente equipada.
Está situado en la mejor zona de Deusto, muy cerca la Universidad de Deusto y del centro de Bilbao.
El piso tiene 4 habitaciones (una de ellas doble con baño privado), cocina equipada, sala con TV plana de 32′, baño completo con una gran ducha y aseo.
Suelo y puertas de madera, ventanas nuevas Climalit, calefacción y agua caliente de gas.
El barrio de Deusto es conocido como una zona de ambiente estudiantil, al ser sede de la Facultad de Economía y Empresa de la Universidad del País Vasco, de la Escuela Oficial de Idiomas y, especialmente, de la Universidad de Deusto, además de varios centros escolares.
El barrio cuenta con dos bibliotecas que forman parte de la red municipal: la de Deusto y la de San Ignacio. Ambas se localizan en la arteria principal del distrito, la avenida Lehendakari Aguirre y entre las dos suman casi 40 000 documentos entre libros, publicaciones periódicas y material audiovisual.
Además está la biblioteca propia de la Facultad de Economía y Empresa de la Universidad del País Vasco.
Deusto cuenta con dos complejos polideportivos en San Pedro de Deusto-La Ribera y en San Ignacio-Elorrieta. El primero —el denominado Polideportivo de Deusto— se encuentra frente al puente Euskalduna y cuenta con una zona de gimnasio, un pabellón cubierto, una pista polideportiva de hierba, sauna y pista de squash.
Por su parte, el polideportivo de San Ignacio cuenta con un campo de fútbol de hierba artificial, así como también de pistas de tenis, gimnasios, frontones y sala de ballet.
Es un barrio muy bien comunicado por
BUS: El servicio de autobuses urbanos, Bilbobus, comunica principalmente el distrito con el centro de la ciudad, aunque también discurre a otros barrios periféricos. Por su parte, Bizkaibus, el servicio de autobuses de la provincia de Vizcaya, tiene frecuentes líneas y numerosas paradas en el distrito, principalmente de aquellas líneas que parten de Abando para dirigirse a los municipios de Munguialdea, Margen derecha y al campus de Leioa de la Universidad del País Vasco.
METRO: líneas 1 y 2, y existen tres paradas, Deusto, Sarriko y San Inazio.
TREN: Desde Deusto partía la línea 4 de EuskoTren, que, tras pasar por el Casco Viejo de Bilbao, llegaba hasta el municipio de Lezama. Dentro del distrito se encontraban las paradas Deustu en la calle Ramón y Cajal y Unibertsitatea, próxima a la Universidad de Deusto. Actualmente, este tramo está en desuso. Anteriormente formaba parte de la línea ferroviaria que enlazaba Bilbao con Plencia con otras paradas en Ibarrekolanda (apeadero) y San Ignacio.
En el barrio existen todos los servicios necesarios: tiendas de alimentación, bancos, farmacias, centro de salud.
Information and data
This housing rental, which is furnished, is located on Madariaga Etorbidea in Bilbao. Bilbao has the zip code 48014 and is located in País Vasco. The size of the rental is in total 18 m2. The housing is being rented out as an ordinary rental. The rental is available from 1.9.2026. The rent is Ca. 550 EUR per month. You must pay a deposit of Ca. 550 Euro.
Market insight: This home was identified through our real-time monitoring of the housing market. We collect housing rentals from across the country in your dashboard – including opportunities that are not always visible on traditional portals. Act immediately on fresh data before other home seekers.