Photo provided by Google Street View and may be inaccurate:
Room for rent, Barcelona Eixample, Barcelona,
, Barcelona Eixample- Room for rent
- Ca. 20 m2
- Ca. 600 EUR per month
, Barcelona Eixample
- Room for rent
- Ca. 20 m2
- Ca. 600 EUR per month
GET MORE INFO
Your are linked to another portal where payment or signing up may be needed
Room for rent, Barcelona Eixample, Barcelona,
Facts
- 14459647
- Room
- Ca. 20 m2
- 1.7.2027
- Ca. 600 EUR
- Ca. 650 EUR
- Yes
GET MORE INFO
Your are linked to another portal where payment or signing up may be needed
Room for rent in Barcelona Eixample, Barcelona
🏙️ Experience luxury co-living done right! ☀️
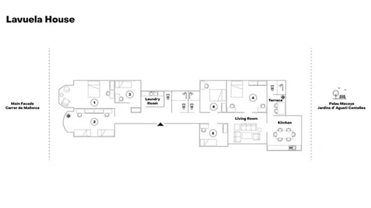
Welcome to this beautifully renovated 190m2 apartment, perfectly situated on the 2nd floor. Designed to offer both comfort and functionality, this spacious home accommodates up to 6 people across 6 well-appointed rooms.
The apartment features a bright living area with multiple windows, a smart TV, and a cozy three-seater sofa bed, making it the ideal place to relax or socialize. The modern kitchen comes fully equipped with all cooking essentials, including fridges and freezers, an oven, and a microwave. A dedicated workspace provides a quiet environment for study or remote work, while the separate laundry room includes a washing machine, dryer, and sink for added convenience.
Each room is thoughtfully furnished with a bed and mattress, night tables, a spacious wardrobe, a mirror, a desk and chair, storage racks, and windows allowing plenty of natural light. One of the bedrooms includes an ensuite bathroom, while two other rooms share 3 bathrooms. The entire apartment is climate-controlled with air conditioning, ceiling fans, and radiators.
👀 Your private room:
The private area available for rent offers 22m2 of serene living space. It features a double bed, windows allowing abundant light and great views, and a comfortable layout complete with a vintage wardrobe, drawer unit, and a desk with a chair.
🛎️ Please note:
You get to enjoy weekly cleaning of the common areas and bathrooms, including towel and laundry service, as well as the regular provision of amenities such as kitchen towels and cleaning materials.
In addition:
- A signed contract is mandatory before entering the premises.
- If, for any reason, you exceed €90 in utilities, you will be charged for the overage.
📍 Location:
Set in the heart of the Eixample, this elegant apartment on Carrer de Mallorca offers the perfect balance of productivity and city comfort. Step outside to wide boulevards lined with cafés, coworking spaces, and Barcelona’s best transport links. Metro lines L2 and L5 serve very near points along Carrer de Mallorca. The Verdaguer station is extremely close (≈ 3-minute walk) to certain areas. Several bus lines stop very close; some stops are literally a minute or two walk away.
📩 Reach out today for more information — your calm and modern stay in Barcelona awaits you!
Welcome to this beautifully renovated 190m2 apartment, perfectly situated on the 2nd floor. Designed to offer both comfort and functionality, this spacious home accommodates up to 6 people across 6 well-appointed rooms.
The apartment features a bright living area with multiple windows, a smart TV, and a cozy three-seater sofa bed, making it the ideal place to relax or socialize. The modern kitchen comes fully equipped with all cooking essentials, including fridges and freezers, an oven, and a microwave. A dedicated workspace provides a quiet environment for study or remote work, while the separate laundry room includes a washing machine, dryer, and sink for added convenience.
Each room is thoughtfully furnished with a bed and mattress, night tables, a spacious wardrobe, a mirror, a desk and chair, storage racks, and windows allowing plenty of natural light. One of the bedrooms includes an ensuite bathroom, while two other rooms share 3 bathrooms. The entire apartment is climate-controlled with air conditioning, ceiling fans, and radiators.
👀 Your private room:
The private area available for rent offers 22m2 of serene living space. It features a double bed, windows allowing abundant light and great views, and a comfortable layout complete with a vintage wardrobe, drawer unit, and a desk with a chair.
🛎️ Please note:
You get to enjoy weekly cleaning of the common areas and bathrooms, including towel and laundry service, as well as the regular provision of amenities such as kitchen towels and cleaning materials.
In addition:
- A signed contract is mandatory before entering the premises.
- If, for any reason, you exceed €90 in utilities, you will be charged for the overage.
📍 Location:
Set in the heart of the Eixample, this elegant apartment on Carrer de Mallorca offers the perfect balance of productivity and city comfort. Step outside to wide boulevards lined with cafés, coworking spaces, and Barcelona’s best transport links. Metro lines L2 and L5 serve very near points along Carrer de Mallorca. The Verdaguer station is extremely close (≈ 3-minute walk) to certain areas. Several bus lines stop very close; some stops are literally a minute or two walk away.
📩 Reach out today for more information — your calm and modern stay in Barcelona awaits you!
Information and data
This housing rental, which is furnished, is located on Carrer de Mallorca in Barcelona Eixample. Barcelona Eixample has the zip code 8037 and is located in Barcelona. The size of the rental is in total Ca. 20 m2. The housing is being rented out as an ordinary rental. The rental is available from 1.7.2027. The rent is Ca. 600 EUR per month. You must pay a deposit of Ca. 650 Euro.
Market insight: This home was identified through our real-time monitoring of the housing market. We collect housing rentals from across the country in your dashboard – including opportunities that are not always visible on traditional portals. Act immediately on fresh data before other home seekers.