Photo provided by Google Street View and may be inaccurate:
Room for rent, Lisbon (region),
, Location is not specified- Room for rent
- Ca. 10 m2
- Ca. 650 EUR per month
, Location is not specified
- Room for rent
- Ca. 10 m2
- Ca. 650 EUR per month
GET MORE INFO
Your are linked to another portal where payment or signing up may be needed
Room for rent, Lisbon (region),
Facts
- 8146987
- Room
- Ca. 10 m2
- 5 months
- 25.8.2026
- Ca. 650 EUR
- Ca. 500 EUR
- Yes
GET MORE INFO
Your are linked to another portal where payment or signing up may be needed
Room for rent in Lisbon (region)
This rental is only for students:
💢💢💢
Immerse yourself in an exceptional student journey that seamlessly merges academic endeavors with the pleasures of coastal existence. Secure your place in this remarkable lodging on the 1st floor, and welcome a lifestyle that intertwines educational advancement with the exhilarating escapades presented by the mesmerizing sea and the vibrant urban panorama of Lisbon.
💢💢💢
Step into a haven of comfort as you enter this cozy room, where the epitome of relaxation awaits. The well-furnished bedroom boasts a single bed, a spacious closet, and a functional desk, ensuring a snug and practical space tailored to your needs. Moreover, enjoy access to communal facilities including a TV, washing machines, and WIFI, offering all the contemporary conveniences necessary for a seamless living experience.
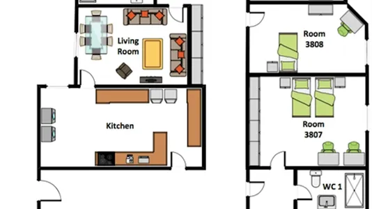
Bathed in natural illumination, this contemporary apartment complex features ten inviting bedrooms, thoughtfully designed with three well-appointed bathrooms, a fully equipped open kitchen, and a serene living room. The living area showcases a dining table and a plush sofa, creating an inviting ambiance that encourages relaxation and fosters cheerful interactions among your fellow housemates.
Nestled in Rua do Pau de Bandeira, Lisbon, the place perfectly complements the lifestyle of ISEG students. Located just a brief 10-minute stroll from the university's entrance, this address offers a prime position for academics. The surrounding area provides an ideal setting for those seeking convenience and a vibrant community atmosphere.
💢💢💢
✍To book, tenants need to pay the first month's rent through the platform and then the security deposit. At the check-in, the tenant pays the last month's rent as well.
🎯Extra services available upon request:
âś…Room Cleaning:
✔Monthly: €20/month
✔Biweekly: €32/month
✔Weekly: €48/month
âś…Extra Residence Cleaning:
✔Monthly: €60/month
✔Biweekly: €100/month
✔Weekly: €160/month
🔸Note:
✔The cost needs to be shared by all residents
✔There should bed only one resident responsible for making the payment and collecting the money from the remaining residents.
✅Second bed upgrade: €40/month
✅Minibar in Bedroom: €40/month
✅Fan in Bedroom: €30/month
✅Electric Heater in Bedroom: €60/month
âś…Gas Heater in Bedroom:
✔Equipment rental: €25/month
✔Gas cylinder: €35/bottle (cost price)
âś…Extra Kitchen Pack:
✔Cooking Pack: €95/Pack
✔Dining Pack: €45/Pack
💢💢💢
Area: Lisbon
Zip code: 1200-758
💢💢💢
Immerse yourself in an exceptional student journey that seamlessly merges academic endeavors with the pleasures of coastal existence. Secure your place in this remarkable lodging on the 1st floor, and welcome a lifestyle that intertwines educational advancement with the exhilarating escapades presented by the mesmerizing sea and the vibrant urban panorama of Lisbon.
💢💢💢
Step into a haven of comfort as you enter this cozy room, where the epitome of relaxation awaits. The well-furnished bedroom boasts a single bed, a spacious closet, and a functional desk, ensuring a snug and practical space tailored to your needs. Moreover, enjoy access to communal facilities including a TV, washing machines, and WIFI, offering all the contemporary conveniences necessary for a seamless living experience.
Bathed in natural illumination, this contemporary apartment complex features ten inviting bedrooms, thoughtfully designed with three well-appointed bathrooms, a fully equipped open kitchen, and a serene living room. The living area showcases a dining table and a plush sofa, creating an inviting ambiance that encourages relaxation and fosters cheerful interactions among your fellow housemates.
Nestled in Rua do Pau de Bandeira, Lisbon, the place perfectly complements the lifestyle of ISEG students. Located just a brief 10-minute stroll from the university's entrance, this address offers a prime position for academics. The surrounding area provides an ideal setting for those seeking convenience and a vibrant community atmosphere.
💢💢💢
✍To book, tenants need to pay the first month's rent through the platform and then the security deposit. At the check-in, the tenant pays the last month's rent as well.
🎯Extra services available upon request:
âś…Room Cleaning:
✔Monthly: €20/month
✔Biweekly: €32/month
✔Weekly: €48/month
âś…Extra Residence Cleaning:
✔Monthly: €60/month
✔Biweekly: €100/month
✔Weekly: €160/month
🔸Note:
✔The cost needs to be shared by all residents
✔There should bed only one resident responsible for making the payment and collecting the money from the remaining residents.
✅Second bed upgrade: €40/month
✅Minibar in Bedroom: €40/month
✅Fan in Bedroom: €30/month
✅Electric Heater in Bedroom: €60/month
âś…Gas Heater in Bedroom:
✔Equipment rental: €25/month
✔Gas cylinder: €35/bottle (cost price)
âś…Extra Kitchen Pack:
✔Cooking Pack: €95/Pack
✔Dining Pack: €45/Pack
💢💢💢
Area: Lisbon
Zip code: 1200-758
Information and data
This housing rental, which is furnished, is located on Rua do Pau de Bandeira in Location is not specified. Location is not specified has the zip code and is located in Undefined. The size of the rental is in total Ca. 10 m2. The housing is being rented out as an ordinary rental. The rental is available from 25.8.2026. The rental period is 5 months. The rent is Ca. 650 EUR per month. You must pay a deposit of Ca. 500 Euro.
Market insight: This home was identified through our real-time monitoring of the housing market. We collect housing rentals from across the country in your dashboard – including opportunities that are not always visible on traditional portals. Act immediately on fresh data before other home seekers.