Photo provided by Google Street View and may be inaccurate:
Apartment for rent, Malmö City, Malmö, Östra Varvsgatan 3
Östra Varvsgatan 3, Malmö Centrum- Apartment for rent
- 59 m2
- 15,525 SEK per month
Östra Varvsgatan 3, Malmö Centrum
- Apartment for rent
- 59 m2
- 15,525 SEK per month
GET MORE INFO
Your are linked to another portal where payment or signing up may be needed
Apartment for rent, Malmö City, Malmö, Östra Varvsgatan 3
Facts
- 14758606
- Apartment
- 59 m2
- 2
- 15,525 SEK
- Yes
GET MORE INFO
Your are linked to another portal where payment or signing up may be needed
Malmö - 2rok - tillsv - 15.525kr/mån
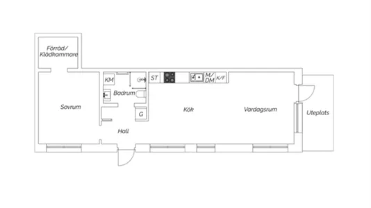
En 2:a som är utöver det vanliga med genomtänkt planlösning på hela 59 kvadrat, uteplats och lyxen av en helt privat ingång. Här bor vi med havet på ena sidan, City på andra sidan och med en park framför uteplatsen vilket ger en alldeles fantastiskt lummig och fridfull känsla. Här erbjuds alla dess fördelar med en ny lägenhet! Här finns oerhört generös takhöjd, en stor walk-in-closet i sovrummet, fräscha ytskikt, stora fönsterpartier, egna tvättmöjligheter och moderna tillval. Bostaden fördelar sig på 59 välplanerade kvadratmeter med fokus på sociala sällskapsytor där det trendriktiga och fullt utrustade köket samt vardagsrummet ligger i en öppen planlösning med direkt utgång till uteplatsen vilket ger en härlig förlängning sommartid.
Bostaden är belägen på havsnära adress med närhet till småbåtshamn, badbryggor, sandstrand, mysiga fik, välkända restauranger, sportanläggningar och stora matvarubutiker. Detta är det perfekt läget mitt mellan Ribersborgs vidsträckta sandstrand och city, med en väldigt trevlig hemmaplan med Dockans småbåtshamn och all dess service utanför porten. Det tar cirka 5-10 min gångavstånd till Malmö universitet och centralstationen som tar en vidare till alla de närliggande större städerna samt över sundet till Kastrup och Köpenhamn.
Varmt välkomna!
Bostaden är belägen på havsnära adress med närhet till småbåtshamn, badbryggor, sandstrand, mysiga fik, välkända restauranger, sportanläggningar och stora matvarubutiker. Detta är det perfekt läget mitt mellan Ribersborgs vidsträckta sandstrand och city, med en väldigt trevlig hemmaplan med Dockans småbåtshamn och all dess service utanför porten. Det tar cirka 5-10 min gångavstånd till Malmö universitet och centralstationen som tar en vidare till alla de närliggande större städerna samt över sundet till Kastrup och Köpenhamn.
Varmt välkomna!
Information and data
This housing rental, which is furnished, is located on Östra Varvsgatan in Malmö City. Malmö City has the zip code 21174 and is located in Malmö. The size of the rental is in total 59 m2 with 2 separate rooms. The housing is being rented out as an ordinary rental. The rent is 15,525 SEK per month.
This is a search result. Continue to the external website by clicking the button to receive more info about the housing.