Photo provided by Google Street View and may be inaccurate:
Apartment for rent, Madrid Carabanchel, Madrid,
, Madrid Carabanchel- Apartment for rent
- Ca. 85 m2
- Ca. 1,900 EUR per month
, Madrid Carabanchel
- Apartment for rent
- Ca. 85 m2
- Ca. 1,900 EUR per month
GET MORE INFO
Your are linked to another portal where payment or signing up may be needed
Apartment for rent, Madrid Carabanchel, Madrid,
Facts
- 9704951
- Apartment
- Ca. 85 m2
- 4
- 1.8.2026
- Ca. 1,900 EUR
- Ca. 3,400 EUR
- Yes
GET MORE INFO
Your are linked to another portal where payment or signing up may be needed
Apartment for rent in Madrid Carabanchel, Madrid
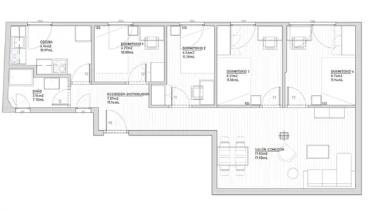
*This student apartment provides a comprehensive and comfortable space that caters perfectly to both living and studying needs*. The *kitchen is equipped* with a refrigerator, oven, washing machine, microwave, ceramic hob, and kitchen *furniture for organized storage*. The living-dining area features a television, a spacious L-shaped sofa, and an armchair, along with a table and four chairs for communal meals or study sessions.
The *bathroom* includes a shower, toilet, and sink, *offering convenience and functionality. The four bedrooms are furnished with 135 cm beds* for a comfortable rest, wardrobes for clothing storage, and desks for private study space.
This apartment offers a *well-equipped and complete environment to facilitate the daily lives of students* , providing all essential amenities in one place.
Explore the youthful and academic energy in the picturesque neighborhood of Opañel , located in Carabanchel, Madrid. With *the Oporto metro station* just a few steps away, this neighborhood offers students a convenient location to access various educational institutions.
Opañel is an ideal enclave for those seeking a dynamic and diverse student experience. Among the nearby universities are Universidad Rey Juan Carlos and Universidad Carlos III , providing residents with exceptional academic opportunities and contributing to the intellectual vitality of the neighborhood.
With a diverse array of *bars, cafés, and restaurants* , Opañel caters to every palate, providing students with ideal options for socializing and relaxing after classes. Additionally, the presence of green spaces such as Parque de las Cruces offers a tranquil environment for outdoor studying or enjoying recreational activities.
This neighborhood also boasts *supermarkets and shops* , ensuring that students have easy access to everything they need for their daily lives. Proximity to other cultural and artistic neighborhoods allows residents to *explore museums, galleries, and cultural events* , further expanding their horizons and experiences.
Rental conditions:
- Free Check-in time: 9:00h - 18:00h from Monday to Friday.
- We offer to pick up service from the airport with a cost of 65€+VAT
- The utility costs are as described in the listing. Nevertheless, if the usage of utilities exceeds the amount that the fixed price for utilities covers, it might be that extra costs will have to be paid.
Please, be aware that HousingAnywhere is an online booking platform. Therefore exchanging contact details and offering viewings is not possible. If you would like to reserve this accommodation, send me a booking request or a message and I will get back to you as soon as possible.
The *bathroom* includes a shower, toilet, and sink, *offering convenience and functionality. The four bedrooms are furnished with 135 cm beds* for a comfortable rest, wardrobes for clothing storage, and desks for private study space.
This apartment offers a *well-equipped and complete environment to facilitate the daily lives of students* , providing all essential amenities in one place.
Explore the youthful and academic energy in the picturesque neighborhood of Opañel , located in Carabanchel, Madrid. With *the Oporto metro station* just a few steps away, this neighborhood offers students a convenient location to access various educational institutions.
Opañel is an ideal enclave for those seeking a dynamic and diverse student experience. Among the nearby universities are Universidad Rey Juan Carlos and Universidad Carlos III , providing residents with exceptional academic opportunities and contributing to the intellectual vitality of the neighborhood.
With a diverse array of *bars, cafés, and restaurants* , Opañel caters to every palate, providing students with ideal options for socializing and relaxing after classes. Additionally, the presence of green spaces such as Parque de las Cruces offers a tranquil environment for outdoor studying or enjoying recreational activities.
This neighborhood also boasts *supermarkets and shops* , ensuring that students have easy access to everything they need for their daily lives. Proximity to other cultural and artistic neighborhoods allows residents to *explore museums, galleries, and cultural events* , further expanding their horizons and experiences.
Rental conditions:
- Free Check-in time: 9:00h - 18:00h from Monday to Friday.
- We offer to pick up service from the airport with a cost of 65€+VAT
- The utility costs are as described in the listing. Nevertheless, if the usage of utilities exceeds the amount that the fixed price for utilities covers, it might be that extra costs will have to be paid.
Please, be aware that HousingAnywhere is an online booking platform. Therefore exchanging contact details and offering viewings is not possible. If you would like to reserve this accommodation, send me a booking request or a message and I will get back to you as soon as possible.
Information and data
This housing rental, which is furnished, is located on Calle de Mercedes Arteaga in Madrid Carabanchel. Madrid Carabanchel has the zip code 28019 and is located in Madrid. The size of the rental is in total Ca. 85 m2 with 4 separate rooms. The housing is being rented out as an ordinary rental. The rental is available from 1.8.2026. The rent is Ca. 1,900 EUR per month. You must pay a deposit of Ca. 3,400 Euro.
Market insight: This home was identified through our real-time monitoring of the housing market. We collect housing rentals from across the country in your dashboard – including opportunities that are not always visible on traditional portals. Act immediately on fresh data before other home seekers.