Photo provided by Google Street View and may be inaccurate:
Room for rent, Valencia Poblats Marítims, Valencia (region),
, Valencia Poblats Marítims- Room for rent
- 22 m2
- 1,050 EUR per month
![Room for rent, Valencia Poblats Marítims, Valencia (region), <span class="blurred street" onclick="ProcessAdRequest(14173603)"><span class="hint">See streetname</span>[xxxxxxxxxxxxx]</span>](/LPUploadImages/Cache/cea97efc-e7a1-43dc-825f-81759d4ce7e4_134.webp?t=638938532713785926)
- Room for rent
- 22 m2
- 1,050 EUR per month
GET MORE INFO
Your are linked to another portal where payment or signing up may be needed
Room for rent, Valencia Poblats Marítims, Valencia (region),
Fakta
- 14173603
- Room
- 22 m2
- 1.11.2025
- 1,050 EUR
- 1,125 EUR
- Yes
GET MORE INFO
Your are linked to another portal where payment or signing up may be needed
Room for rent in Valencia Poblats Marítims, Valencia (region)
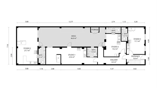
Please note: the photo is a render. The studios are currently under construction. Check the floor plan to see how the units will be divided.
Welcome to your new home in Valencia!
This spacious and fully furnished studio on Carrer d’Antonio Ponz 9, Planta Bajo is designed for comfort, privacy, and convenience. Available from October 1st (end date in consultation).
The studio includes:
Private kitchen with fridge, gas stove, extractor hood, sink, and storage space
Private bathroom with shower, toilet, and sink
Cozy living area with TV, lounge chair, and dining table/desk
Comfortable bed
Shared facilities:
Washing machine
Vacuum cleaner
Ironing board and iron
Shared garden
Price: €1050 + €75 utilities (GWL)
Couples allowed
Welcome to your new home in Valencia!
This spacious and fully furnished studio on Carrer d’Antonio Ponz 9, Planta Bajo is designed for comfort, privacy, and convenience. Available from October 1st (end date in consultation).
The studio includes:
Private kitchen with fridge, gas stove, extractor hood, sink, and storage space
Private bathroom with shower, toilet, and sink
Cozy living area with TV, lounge chair, and dining table/desk
Comfortable bed
Shared facilities:
Washing machine
Vacuum cleaner
Ironing board and iron
Shared garden
Price: €1050 + €75 utilities (GWL)
Couples allowed
Information and data
This housing rental, which is furnished, is located on Carrer d Antonio Ponz in Valencia Poblats Marítims. Valencia Poblats Marítims has the zip code 46011 and is located in Valencia (region). The size of the rental is in total 22 m2. The housing is being rented out as an ordinary rental. The rental is available from 1.11.2025. The rent is 1,050 EUR per month. You must pay a deposit of 1,125 Euro.
This is a search result. Continue to the external website by clicking the button to receive more info about the housing.